Enjeux et objectifs
En 2007, la SEM du Groupe SéPA se voyait confier l’aménagement de la « ZAC centre-ville » par la commune de Billère : 6,5 hectares à aménager avec la mixité sociale et la construction de logements diversifiés comme axes forts.
17 ans plus tard, c’est sur le dernier lot de cette ZAC qu’ont débuté les travaux de la Résidence Plana, dont la livraison est prévue fin 2025. A l’achèvement de la Résidence, la ZAC centre-ville comportera un total de 555 logements avec une mixité sociale importante.
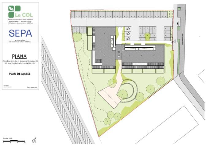
Co-construite par le Groupe SéPA et le COL, avec Séverine Tardieu comme architecte, la Résidence se situe au cœur de Billère et à seulement 5 minutes du centre-ville de Pau.
La Résidence Plana (de l’Occitan « Plaine ») se compose de 2 bâtiments disposés en L et entourés de verdure. Elle totalisera 41 logements, du T2 au T5 avec stationnements, commercialisés par le COL en BRS (Bail Réel Solidaire) et en SCIAPP (Société Civile Immobilière d’Accession Progressive à la Propriété).
Informations détaillées
Localisation / adresse du projet :
17 Rue Virgilio Peňa Cordoba à Billère
Clients :
Le COL
Mode d'intervention :
Promotion immobilière
Maîtrise d'œuvre :
Séverine Tardieu Architecte, Agence Labadiolle, Biofluides, BEC Bâtiment Etudes Conseils.
Maîtrise d'ouvrage :
Le COL pour 19 logements et la SEM du Groupe SéPA pour 22 logements.
Partenaires du projet :
Ville de Billère
Équipe en charge du projet :
Eric Di Santo et Julien Marque, assistés de Nadège Carruesco.
Nombre de logements :
41 (total)
Date de livraison :
Décembre 2025
Date de démarrage des travaux :
Septembre 2024
Budget de l'opération :
3 millions d’euros HT (22 logements SEM SEPA)
Type de programme :
VEFA
Type de location / accession :
Accession sociale
Superficie du terrain :
4 605 m²
Superficie surface habitable :
2 763 m² (41 logements)
Localisation
Adresse : 17 Rue Virgilio Peňa Cordoba, 64140 Billère
